Renaissance Hotel

Summer 2023

Renaissance Hotel is in the heart of Florence, Italy, a city that is often recognized as the birthplace of the Renaissance. The numerous monuments, art galleries, and museums, along with the architectural wonders, make Florence a memorable destination. With this project, I expanded my design skills while using a building with a large footprint to accommodate an expanded and complex program.

Site

Generali Building

Piazza della Signoria

Florence, Italy

Area: 8,430 SF

Inspiration

Inspired by Florence city walls

Historical Development of the City Walls in Florence

Concept

This concept is inspired by the historical development of the city walls in Florence. These walls created fragmented geometries. The gap between the fragmented city walls leads to either roads or city gates in Florence. These city walls were reoriented due to the growing population of Florence and the protection of its citizens.

Renders

Left side lobby: Cafe & Bookstore

View from lobby to artisan

Storyboard

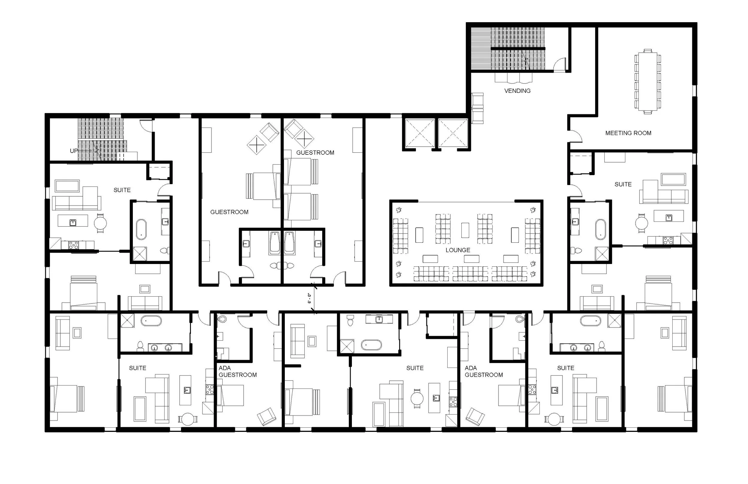
SECOND FLOOR FLOOR PLAN

Drawings

Rotate each square

Axis added (inspired by North-South and West-East axis in Florence)

Lobby & Reception

View from reception to bookstore

Furniture, Material & Lighting

Fragmented walls created by axis and rotated walls

Cafe & Bookstore

Lobby fragmented walls

Program

artisan, bookstore, cafe, suites, guestrooms, ADA guestrooms

Design Development

Fragmented short and tall walls in lobby

View from lobby

Cafe

Right side lobby: Artisan

Artisan

Enter: Lobby

Bookstore

Viewing from back to front